FILOZOFIA
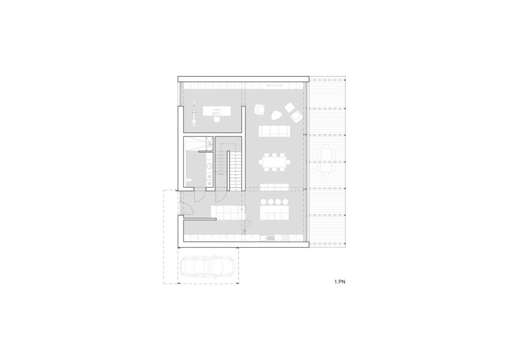
Návrh rodinného domu v obci Borša reflektuje potreby bezdetného manželského páru, pre ktorý vznikol kompaktný, no priestorovo veľkorysý koncept bývania. Dom je situovaný na nárožnej parcele a jeho dvojpodlažná dispozícia jasne oddeľuje dennú obytnú časť od nočnej – prízemie slúži ako otvorený spoločenský priestor, zatiaľ čo poschodie je vyhradené pre súkromie.
Netypická požiadavka na jedinú spálňu otvorila priestor pre nadštandardné dispozičné riešenie. Priestor pôvodne vyhradený pre ďalšie izby bol využitý na vytvorenie výrazne presvetleného obytného priestoru s vysokým stropom v jedálni a obývačke. Tento centrálny prvok dodáva interiéru vzdušnosť a umocňuje prepojenie jednotlivých častí domu.
Hmotové riešenie reflektuje na dialóg medzi svetlými výškami interiéru a dispozičným členením. Výsledkom je obdĺžnikový objem s dvomi ustúpenými rohmi na druhom nadzemnom podlaží – odsadenie severozápadného rohu druhého nadzemného podlažia vizuálne odľahčuje nárožie budovy a prirodzene ju začleňuje do urbanistického kontextu. Symetrické ustúpenie juhovýchodného rohu smerom do dvora vytvára terasu, ktorá nadväzuje na hlavnú spálňu a rozširuje súkromný obytný priestor smerom do exteriéru.







